без комісії
пер. шевченковский, 48 — Продається квартира в новобудові
(г. Харьков, Киевский район)
926475 грн.
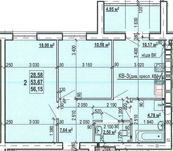
Загальна площа: 56.15 кв.м
Жила площа: 29 кв.м
Площа кухні: 10 кв.м
Кімнат: 2
Поверх: 4
К-ть поверхів: 9
БЕЗ КОМІСІЇ продається 2-кімнатна квартира в ЖК "Пташка". Комплекс розташований по пров. Шевченківський 48. У 1 км., ходьби знаходяться станції метро «АК. Павлова», супермаркет (Чудо), БЦ Radmir, малі продовольчі та побутові магазини та зупини автобусів та трамваїв. До найближчих дитячих садків та шкіл, 2 км. - Квартира розташована в будинку № 21 - будується, здача запланована на 4 квартал 2022 року. Площа квартири: Загальна. - 56 м²; Житлова - 29 м²; Кухня - 10 м². - ПОТРІБНО КАПІТАЛЬНИЙ РЕМОНТ. КОМПЛЕКТАЦІЯ КВАРТИРИ: • встановлені перегородки як зазначено на плані; • металопластикові вікна (viknaland) • горизонтальна розводка опалення та радіатори опалення (є можливість поставити лічильник на тепло, регулятори на батареї і контролювати подачу тепла в квартиру індивідуально); • вхідні залізні двері; • лічильник на електрику; • підведені комунікації (холодна, гаряча вода); • каналізація; • прийнято електрику; • зроблено зовнішнє утеплення стін (утеплювач пінополістирол 100 мм). - Буду радий Вас чути): Пн-Пт - 8: 00-20: 00. Сб-Нд - II: 00-20: 00 Святкові дні - вихідний.