Вхід на сайт

Ел. пошта:
Пароль:

Реєстрація на сайті

Призвіще: Область:
Ім'я: Населений пункт:
    По батькові: Номер телефону:
    Ел. пошта: Компанія:
      Пароль: Посада:
      Повторіть пароль: Рік початку роботи:
      Фото:
      З правилами розміщення об'єктів погоджуюсь

      Забули пароль?

      Вкажіть ел. пошту — ми надішлемо Вам новий пароль для входу
      Ел. пошта:

      Проблема на сайті

      Закрити
      Ваш e-mail:
      (необов'язково)
      Розкажіть нам, що сталось

      ул. Лермонтова — Продається торгівельний майданчик

      (г. Кривой Рог, Центрально-Городской район)

      72000 $

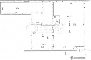
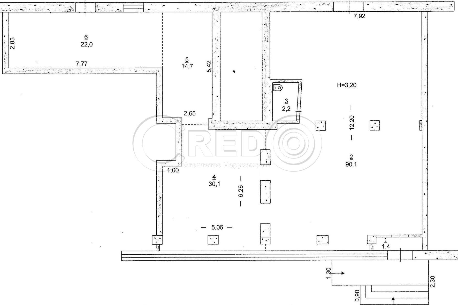
      Загальна площа: 160 кв.м

      Поверх: 1

      К-ть поверхів: 5

      Продаж торгового приміщення в Центрально Міському районі
      - пр. Центральний (вул. Лермонтова)
      - зупинка "Центральний ринок"

      Технічні характеристики:
      - перший поверх п’ятиповерхового житлового будинку
      - окремий вхід

      Планування об’єкту:
      - загальна площа - 160кв.м
      - торговельна зала -120 кв.м
      - підсобні приміщення
      - завантажувальний вхід
      - гарний стан
      - вітражний фасад

      Комунікації:
      - центральне опалення
      - центральне електропостачання 5 кВт; 380 Вт
      - центральне водопостачання
      - центральна каналізація
      - охоронна, пожежна сигналізації

      Логістична розв’язка:
      - магазин розташований по "червоній лінії"
      - поруч зупинки громадського транспорту
      - парковка біля приміщення
      - автомобільний та пішохідний трафік
      Підійде під будь яку Вашу діяльність.
      Продаж 72 000 у.о.

      За будь-якими питаннями за цією або іншими пропозиціями звертайтесь за номером телефону 067 696 16 51.
      З повагою, команда Credo!

      Надіслати скаргу

      Закрити
      Поскаржитися на об'єкт «ул. Лермонтова (г. Кривой Рог, Центрально-Городской район)»
      Ваш коментар:(Необов'язково)
      Ваша скарга буде надіслана ріелтору, що розмістив об'єкт, а також адміністрації сайту АФНУ.
      Ваше ім'я:
      (Обов'язково)
      Ваш e-mail для відповіді:
      (Обов'язково)

      Вам также могут подойти

      ул. Пушкина (г. Кривой Рог, Центрально-Городской район) - Продається торгівельний майданчик, 60000 $ - АФНУ

      Оновлено: 2 квітня

      Розміщено: 16 жовтня 2025

      Продається торгівельний майданчик

      площа 62, поверх 1/5

      г. Кривой Рог, ул. Пушкина

      60000 $

      Літвинова Ірина Вікторівна

      Продаж магазину по вул. Гірничих інженерів (Пушкіна)
      - Центрально-Міський район
      - "червона лінія"
      - новий, капітальний ремонт

      Про об’єкт:
      - загальна площа-62 кв.м
      - торгівельна зала-34,9 кв.м
      - висота потолків-…

      Детальніше

      пр. Победы (г. Кривой Рог, Ингулецкий район) - Продається торгівельний майданчик, 70000 $ - АФНУ

      Оновлено: 6 березня

      Розміщено: 12 вересня 2016

      Продається торгівельний майданчик

      площа 335, поверх 1/2

      г. Кривой Рог, пр. Победы

      70000 $

      Літвинова Ірина Вікторівна

      Пропонуємо на продаж 1/2 частину окремо розташованої 2-х поверхової торгово-офісної будівлі по пр. Перемоги (Інгулець, центр)

      Про об'єкт:
      - загальна площа - 335,45 кв.м.
      - 1-й поверх – 70кв.м.
      -…

      Детальніше

      ул. Товстановского (г. Кривой Рог, Жовтневый район) - Продається торгівельний майданчик, 85000 $ - АФНУ

      Оновлено: 7 квітня

      Розміщено: 24 лютого 2021

      Продається торгівельний майданчик

      площа 983, поверх -/1

      г. Кривой Рог, ул. Товстановского

      85000 $

      Літвинова Ірина Вікторівна

      Продаж комплексу на Піонері вул. Кирило-Мефодіївська (Товстановського).
      Комплекс з боксами, гаражами, складами та побудовами.
      Земельна ділянка 45 соток з кадастровим номером, огороджена, асфальтована.

      Технічні характеристики:
      Загальна площа будівлі 983.8кв.м.

      Комунікації:…

      Детальніше

      Коментарі