Вхід на сайт

Ел. пошта:
Пароль:

Реєстрація на сайті

Призвіще: Область:
Ім'я: Населений пункт:
    По батькові: Номер телефону:
    Ел. пошта: Компанія:
      Пароль: Посада:
      Повторіть пароль: Рік початку роботи:
      Фото:
      З правилами розміщення об'єктів погоджуюсь

      Забули пароль?

      Вкажіть ел. пошту — ми надішлемо Вам новий пароль для входу
      Ел. пошта:

      Проблема на сайті

      Закрити
      Ваш e-mail:
      (необов'язково)
      Розкажіть нам, що сталось

      ул. Лермонтова — Здається торгівельний майданчик

      (г. Кривой Рог, Центрально-Городской район)

      20000 грн.

      Поверх: 1

      К-ть поверхів: 5

      Оренда магазину пр. Центральний
      - Центрально Міський район
      - пр.Центральний (вул. Лермонтова)
      - зупинка "Центральний ринок"

      Технічні характеристики:
      - перший поверх п’ятиповерхового житлового будинку
      - окремий вхід
      - завантажувальний вхід
      - парковка перед приміщенням

      Планування об’єкту:
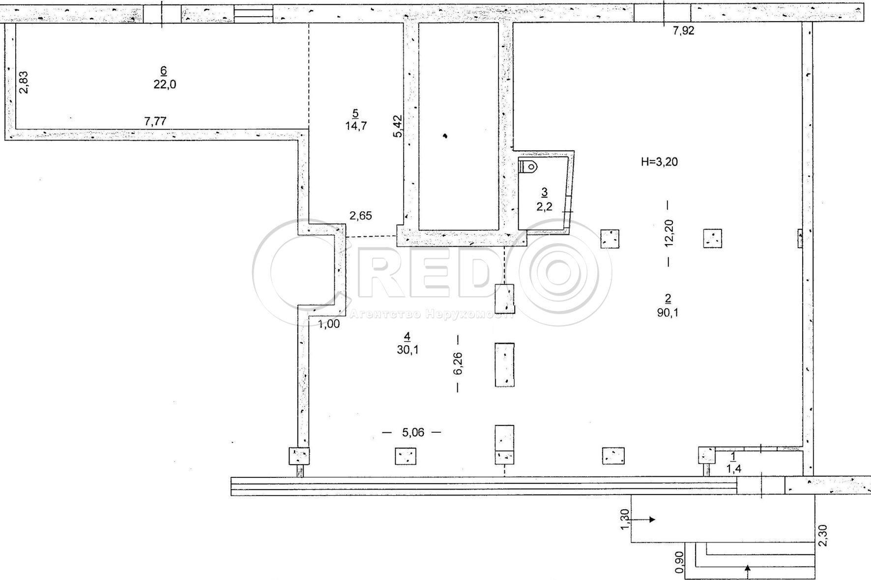
      - загальна площа - 160кв.м
      - торговельна зала-120 кв.м
      - підсобні приміщення
      - завантажувальний вхід
      - гарний стан
      - вітражний фасад

      Комунікації:
      - центральне опалення
      - центральне електропостачання 5 кВт; 380 Вт
      - центральне водопостачання
      - центральна каналізація
      - охоронна, пожежна сигналізації

      Логістична розв’язка:
      - магазин розташований по "червоній лінії"
      - поруч зупинки громадського транспорту
      - великий автомобільний та пішохідний трафік

      Додаткові платежі:
      - світло, вода - лічильники
      - інтернет
      - пожежна та охорона сигналізації
      - комунальні послуги
      - опалення в опалювальний сезон

      Оренда магазину - 20 000 грн.

      За будь-якими питаннями за цією або іншими пропозиціями звертайтесь за номером телефону 067 696 16 51.
      З повагою, команда Credo!

      Надіслати скаргу

      Закрити
      Поскаржитися на об'єкт «ул. Лермонтова (г. Кривой Рог, Центрально-Городской район)»
      Ваш коментар:(Необов'язково)
      Ваша скарга буде надіслана ріелтору, що розмістив об'єкт, а також адміністрації сайту АФНУ.
      Ваше ім'я:
      (Обов'язково)
      Ваш e-mail для відповіді:
      (Обов'язково)

      Вам также могут подойти

      ул. Лебедева-Кумача (г. Кривой Рог, Центрально-Городской район) - Продається торгівельний майданчик, 28000 $ - АФНУ

      Оновлено: 31 березня

      Розміщено: 25 лютого 2019

      Продається торгівельний майданчик

      площа 53, поверх 1/1

      г. Кривой Рог, ул. Лебедева-Кумача

      28000 $

      Літвинова Ірина Вікторівна

      Пропонуємо продаж нежитлової, окремо розташованої будівлі, вільного призначення в Центрально-міському р-ні, вул. Лебедєва-Кумача (Цетр. Міський ринок)

      Про об'єкт:
      - загальна площа - 53,4 кв.м
      - земельна ділянка - 15 соток…

      Детальніше

      Петра Калнишевського (г. Кривой Рог, Центрально-Городской район) - Здається торгівельний майданчик, 12000 грн. - АФНУ

      Оновлено: 2 квітня

      Розміщено: 18 серпня 2023

      Здається торгівельний майданчик

      площа 48, поверх 1/5

      г. Кривой Рог, Петра Калнишевського

      12000 грн.

      Літвинова Ірина Вікторівна

      Пропонується в оренду приміщення по вул. П. Калнишевского (Харитонова), «червона лінія»

      Про об'єкт:
      Загальна площа приміщення 48.6кв.м.

      Особливості:
      - Один великий торгівельний зал.
      - Сан вузол.
      - Підлога – кахель.…

      Детальніше

      ул. Софьи Перовской (г. Кривой Рог, Саксаганский район) - Продається торгівельний майданчик, 14800 $ - АФНУ

      Оновлено: 31 березня

      Розміщено: 26 січня 2018

      Продається торгівельний майданчик

      площа 25, поверх 1/5

      г. Кривой Рог, ул. Софьи Перовской

      14800 $

      Літвинова Ірина Вікторівна

      Продається приміщення в районі зупинки «Площі В. Великого», вулиця Софії Перовської.

      Про об'єкт:
      - Загальна площа - 25,1 кв.м.

      Особливості:
      - Зроблений новий євроремонт 2022р.
      - Поміняна каналізація, проводка, бойлер…

      Детальніше

      Коментарі