Вхід на сайт

Ел. пошта:
Пароль:

Реєстрація на сайті

Призвіще: Область:
Ім'я: Населений пункт:
    По батькові: Номер телефону:
    Ел. пошта: Компанія:
      Пароль: Посада:
      Повторіть пароль: Рік початку роботи:
      Фото:
      З правилами розміщення об'єктів погоджуюсь

      Забули пароль?

      Вкажіть ел. пошту — ми надішлемо Вам новий пароль для входу
      Ел. пошта:

      Проблема на сайті

      Закрити
      Ваш e-mail:
      (необов'язково)
      Розкажіть нам, що сталось

      ул. Кучеренко — Здається квартира

      (г. Полтава, Киевский район)

      6000 грн.

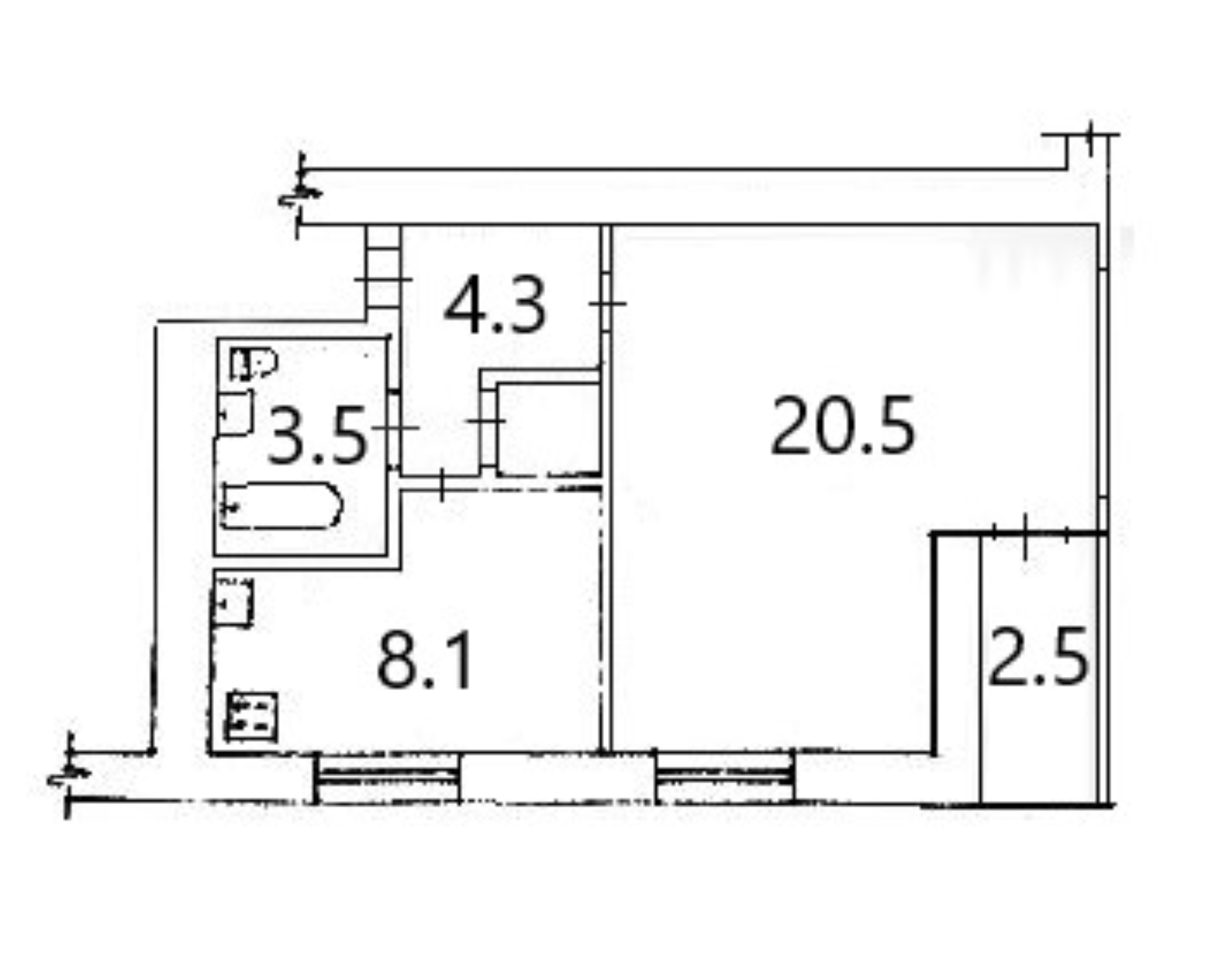
      Загальна площа: 39.9 кв.м

      Жила площа: 20.5 кв.м

      Площа кухні: 8.1 кв.м

      Кімнат: 1

      Поверх: 3

      К-ть поверхів: 5

      Оренда 1 кімнатної квартири підвищеної комфортності розташованої на м-ні Браїлки, р-н вул. Баленка, 1

      Характеристика квартири:
      - загальна площа 39, 9 м.кв;
      - кімната- 20, 5 м.кв;
      - кухня 8, 1 м.кв;
      - лоджія засклена;
      - 3/5 цегляного будинку

      Комунікації:
      - централізовані;
      - лічильники на світло, газ, воду.

      Стан:
      - ремонт 2015 року;
      - повна комплектація квартири меблями
      - холодильник є
      - пральної машинки немає

      Умови оренди:
      - термін оренди від 3 місяців;
      - сім'ю чи дівчину;
      - без дітей;
      - без тварин

      Вартість оренди:
      - 6000 грн/місяць (оплата перший та останній місяць)+ комунальні платежі + одноразова комісія АН-50% від місячної орендної плати

      Надіслати скаргу

      Закрити
      Поскаржитися на об'єкт «ул. Кучеренко (г. Полтава, Киевский район)»
      Ваш коментар:(Необов'язково)
      Ваша скарга буде надіслана ріелтору, що розмістив об'єкт, а також адміністрації сайту АФНУ.
      Ваше ім'я:
      (Обов'язково)
      Ваш e-mail для відповіді:
      (Обов'язково)

      Вам также могут подойти

      бул. Юрия Победоносцева (г. Полтава, Октябрьский район) - Здається квартира, 8000 грн. - АФНУ

      Оновлено: 16 лютого

      Розміщено: 20 січня

      Здається квартира

      1 кімн., площа 35/18/8.5, поверх 3/9

      г. Полтава, бул. Юрия Победоносцева

      8000 грн.

      Остапченко Александр Степанович

      соучредитель (Агентство недвижимости "Альянс риэлти" Полтава)

      Здам 1-кімнатну квартиру в Полтаві, м-н Сади-2
      Здається затишна 1-кімнатна квартира у мікрорайоні Сади-2, по бульвару Юрія Побєдоносцева, поруч із ТЦ «Паровоз» — зручна локація з гарною інфраструктурою.
      Характеристики квартири:…

      Детальніше

      ул. Красина, 118 (г. Полтава, Октябрьский район) - Здається квартира, 8000 грн. - АФНУ

      Оновлено: 16 лютого

      Розміщено: 16 лютого

      Здається квартира

      2 кімн., площа 48/28/8, поверх 4/9

      г. Полтава, ул. Красина, 118

      8000 грн.

      Остапченко Александр Степанович

      соучредитель (Агентство недвижимости "Альянс риэлти" Полтава)

      Здам в оренду 2 кімнати в 3 кімнатній квартирі (сама менша кімната закрита) на м-ні Сади-2, р-н вул. Герої АТО, 116-118, ремонт 2016 р., комплект меблів та побутової техніки
      Характеристика…

      Детальніше

      Коментарі